Carlton Park, Bristol

1 bedroom Apartment to rent

£1,100 PCM

  • 1 bedroom
  • 1 bathroom
  • 1 reception

Key Features

  • ONE BEDROOM
  • TOP FLOOR APARTMENT
  • UNFURNISHED
  • 0.5 MILES TO LAWRENCE HILL TRAIN STATION
  • CLOSE TO AMENTIES
  • 0.6 MILES TO ST GEORGE PARK

Description

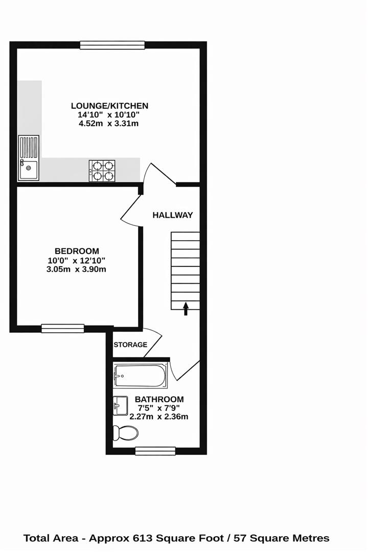
A well-presented one bedroom first-floor flat set within a converted Victorian property, ideally located just off Carlton Park in the heart of BS5, moments from Church Road.

The flat offers open-plan living, with a bright living space flowing into the kitchen area, creating a practical and sociable layout. The bedroom is a good size, comfortably accommodating a double bed and additional furniture. The property is offered unfurnished, allowing tenants to make the space their own.

Set in a popular residential area, the flat benefits from easy access to Church Road’s independent shops, cafés and restaurants, as well as local parks and transport links into the city centre.

Ideal for a professional single or couple looking for a well-located home in a characterful period building.


Location


Floorplan

Floorplan

EPC

EPC for Carlton Park, Bristol

Bristol Estate Agent

Second Floor, 9 Queen Square, Bristol, BS1 4JE

Calculate Your Stamp Duty
£
Results
Stamp Duty To Pay:
Effective Rate:
Tax Band % Taxable Sum Tax

Similar Properties

Deep Pit Road, Bristol
To Rent

Deep Pit Road, Bristol

1 Bed House share To Rent
Guide price £700 PCM
Deep Pit Road, Bristol
Let Agreed

Deep Pit Road, Bristol

1 Bed House share Let Agreed
Guide price £700 PCM
Deep Pit Road, Bristol
To Rent

Deep Pit Road, Bristol

1 Bed House share To Rent
Guide price £600 PCM